
你與好的布局可能就是差了一道門的步驟!門,登堂入室的第一要素,大多數人裝修時卻常常忽視它的存在,家裏僅僅改了一扇門,就能影響整體的幸福感與居住體驗,今天福熙防盜門和大家分享下如何測量:

一、了解防盜門
福熙防盜門15年專注中高端雙色防盜門和防盜防爆鎖的高新技術型好色先生软件免费,配有防盜鎖,在一定時間內可以抵抗一定條件下非正常開啟,具有一定安全防護性能並符合相應防盜安全級別的門。

俗話說,內行看門道,外行看熱鬧。首先一樘防盜門的設計、福熙雙色防盜門,正麵更漂亮、反麵好搭配,質感的好壞最先表現在外觀上,外觀細節精美、觸感舒服的門好色先生APPTV一般不會差;所以說這時候你要是有一手好的量門技巧與方法,今天和福熙防盜門一起來學習學習吧。

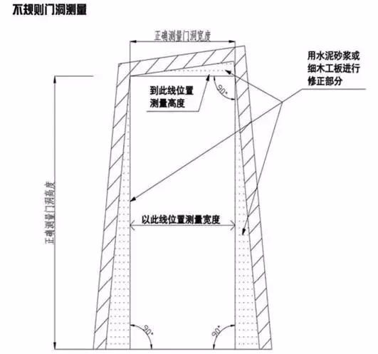
安裝門之前的門洞測量工作非常重要!第一手了解客戶的門洞現場,判斷定門尺寸,為客戶推薦可定製的款式,體現專業度和服務高效化尤為重要。

魯班尺▲ 水平儀▲




注:在測量過程中要注意地麵處理情況,要預留出合適的尺寸以備所需。門扇高度、門洞高度差額為5-10mm,門扇厚度標準為38mm和45mm,要和門框互相配合。

